Rotary Engine

Rotary Engine

Mazda Rotary Engine installation and tuning information



Engine Information

Identification

Only turbo models (other than RX8) have been covered.

12A Turbo


Available in the JDM RX7 Sereis 3 and some HB Cosmo models.  This was a popular easy engine swap for all RX7 Series 1,2,3 models with it being a direct bolt in replacement engine.  Easily identified by the orange hat on top of the carburettor-style throttle body.  They have extremely small ports, small throttle, and as such make very little power.  Distributor ignition with boost retard diaphram.


13BT Series 4


Found more commonly in the 1986-1988 RX7.  Identified by the mechanical rod oil metering pump, twin scroll turbo with control diaphram, straight tube intercooler feed pipe, single TPS, 8.5:1 comp. Waste spark ignition with Toggle-style Trail igniter. This ignition runs the same as a Distributor but has a signal from the ECU to tell the igniter to alternate the output between two coils.


13BT Series 5


Found more commonly in the 1989-1991 RX7. Idenitifed by a stepper motor oil metering system, 2x TPS, larger turbo with no twin scroll, tapered intercooler feed pipe, 9.0:1 comp. Same ignition as Series 4


13B-RE Cosmo


Found only in the JC Cosmo. All were automatic transmissions.  Very large end plate ports. Sequential Twin Turbos. Serpentine dirve belt. No inspection cover for flywheel on end plate.


13B-REW Series 6,7,8


Found in the FC RX7 Series 6,7,8.  As per Cosmo engine with smaller end plate ports.  Larger secondary injectors.  Waste Spark Ignition.


13B-MSP


Found in the RX8. Exhaust ports moved from housing to end plates as per intake ports. DBW. Motor controlled port actuators. 10.0:1 compression. Naturally Aspirated. Direct Fire ignition. Manual transmission models have 3x injectors per rotor.


20B


Found only in the JC Cosmo with all having an automatic transmission. 3-rotor engine with Sequential Twin Turbos, specs otherwise similar to the 13B-RE. 2x Dual-Toggle igniters which run in the same way as Series 4/5 ignition but have 3x outputs fired in sequence.  OEM igniters are NOT supported by Haltech ECU's.


R26B


Made famous from Mazda's win at Le Mans.  Not available to the public. There are a number of 4-rotor kits that use custom crankshafts and end plates available on the market.  4-Rotor engines are supported via the Elite 2500 ECU model.





Displacement

Elite ECUs required the true displacement to be entered for VE tuning, as listed below.

Engine
Displacement
10A 2-rotor
982cc
12A 2-rotor
1146cc
13B 2-rotor
1308cc
20B 3-rotor
1962cc
26B 4-rotor
2616cc



Firing Order

Engine
FIring Order
10A
1-2
12A
1-2
13B
1-2
20B
1-2-3
26B
1-3-2-4











Sensor Information

Crank Sensor

RX7 FC3S Series 4/5, Cosmo 13B and 20B

The FC3S has a distributor-like CAS (Crank Angle Sensor) unit with an easily removable inspection cover.  Inside you will find a 24x trigger and a 2x home (sync) each with a reluctor sensor. Being a distributor type system it rotates at half of the crank RPM.


OEM Wiring

CAS Wiring
Description
Haltech Connection
Red
NE+ 24x
Trigger + (Yellow in Trigger 4-core
White
NE- 24x
Trigger - (Green in Trigger 4-core)
Green
G+ 1x
Home + (Yellow in Home 4-core
White/Black
G- 1x
Home - (Green in Home 4-core)




RX7 FD3S Series 6/7/8

The FD3S has a crank mounted trigger system. It has an inner trigger with 12x teeth and an outer 1x tooth home trigger with both using reluctor sensors.  This gives the same signal pattern as the FC3S CAS.
  



For this model, Mazda links both of the negative signals to each other in the factory wiring loom.

When wiring to the OEM ECU Connector
OEM Wiring
Description
Haltech Connection
Black - Pin 2 - 12 tooth sensor
NE+ 12x
Trigger + (Yellow in Trigger 4-core)
White - Pin 2 - 1 tooth sensor
G+ 1x
Home + (Yellow in Home 4-core)
Red - Pin 1 both sensors
NE- & G-
Signal Ground (Blue in Trigger 4-core)
Trigger and Home Ground Reference must both be set to Enabled for this wiring.


When wiring direct from a Haltech Elite ECU to the Crank Sensors. This is the preferred way to wire these sensors.
OEM Wiring
Description
Haltech Connection
Black - Pin 2 - 12 tooth sensor
NE+ 12x
Trigger + (Yellow in Trigger 4-core)
Green - Pin 1 - 12 tooth sensor
NE- 12x
Trigger - (Green in Trigger 4-core)
White - Pin 2 - 1 tooth sensor
G+ 1x
Home + (Yellow in Home 4-core)
Red - Pin 1 - 1 tooth sensor
G- 1x
Home - (Green in Home 4-core)
Trigger and Home Ground Reference must both be set to Disabled for this wiring.






Trigger Wiring Sheet

All Mazda rotary engines use Reluctor sensors, and when wired correctly use a Falling edge





Crank Trigger Configuration

Trigger Type
TDC Angle
TDC Offset Angle Table Required
Trigger Sensor Type
Trigger Sensor Edge
Trigger Filter Level
Trigger Pull-up 
Trigger Ground Ref
Home Sensor Type
Home Sensor Edge
Home Filter Level
Home Pull-up
Home Ground Ref
Home Min RPM
Quick Start
Ignition Mode
Ignition Edge
Ignition Dwell Mode
Mazda - 13B RX-7 FC3S
5

Yes

Reluctor
Falling
0
-
Disabled
Reluctor
Falling
0
-
Disabled
-
Disabled
OEM IGNITORS NOT SUPPORTED
-
-
Mazda - 13B RX-7 FD3S
5
Yes
Reluctor
Falling
0
-
Enabled
Reluctor
Falling
0
-
Enabled
-
Disabled
Waste Spark
Falling
Constant Charge
Mazda - 20B Cosmo FC
5
Yes
Reluctor
Falling
0
-
Disabled
Reluctor
Falling
0
-
Disabled
-
Disabled
Direct Fire Only. OEM IGNITORS NOT SUPPORTED


Mazda - RX-8

35 (unverified)

Yes
Reluctor
Falling
0
-
Disabled
-
-
-
-
-
-
Disabled
Direct Fire
Falling
Constant Charge











Ignition Wiring

LEAD are the bottom spark plugs and the housing are marked with an "L" to show this.
TRAIL are the top spark plugs and the housings are marked with a "T" to show this.

Haltech treat the rotary engine ignition as if, for example, a 2-rotor was the same as a 2-cylinder with just one spark plug per cylinder.  So when wiring the ignition the Lead spark is wired first, and the Trail is treated as an auxiliary ignition. So they are wired in the follow orders:


2-Rotor Direct Fire  (10A / 12A / 13B)

Function
Haltech Output
Haltech Wiring Colour
Elite 550/750 ECU Pin
Elite 1000/1500/2000/2500 ECU Pin
LEAD 1
Ignition Output #1
Yellow/Black
3
A3
LEAD 2
Ignition Output #2
Yellow/Red
4
A4
TRAIL 1
Ignition Output #3
Yellow/Orange
5
A5
TRAIL 2
Ignition Output #4
Yellow/Green
6
A6


2-Rotor Waste Spark   (10A / 12A / 13B)

Function
Haltech Output
Haltech Wiring Colour
Elite 550/750 ECU Pin
Elite 1000/1500/2000/2500 ECU Pin
LEAD
Ignition Output #1
Yellow/Black
3
A3
TRAIL 1
Ignition Output #3
Yellow/Orange
5
A5
TRAIL 2
Ignition Output #4
Yellow/Green
6
A6


3-Rotor Direct Fire   (20B)


Function
Haltech Output
Haltech Wiring Colour
Elite 2000/2500 ECU Pin
LEAD 1
Ignition Output #1
Yellow/Black
A3
LEAD 2
Ignition Output #2

Yellow/Red
A4
LEAD 3
Ignition Output #3
Yellow/Orange
A5
TRAIL 1
Ignition Output #4
Yellow/Green
A6
TRAIL 2
Ignition Output #5
Yellow/Brown
A7
TRAIL 3
Ignition Output #6
Yellow/Blue
A8


4-Rotor Direct Fire   (26B)

Function
Haltech Output
Haltech Wiring Colour
Elite 2000/2500 ECU Pin
LEAD 1
Ignition Output #1
Yellow/Black
A3
LEAD 2
Ignition Output #2

Yellow/Red
A4
LEAD 3
Ignition Output #3
Yellow/Orange
A5
LEAD 4
Ignition Output #4
Yellow/Green
A6
TRAIL 1
Ignition Output #5
Yellow/Brown
A7
TRAIL 2
Ignition Output #6
Yellow/Blue
A8
TRAIL 3
Ignition Output #7
Yellow/Violet
B17
TRAIL 4
Ignition Output #8
Yellow/Grey
B18








OEM Ignition Coils

FC3S Ignition Coils
The FC3S Lead coil assembly includes a dual-post coil for the Lead spark with an attached single channel igniter module that fires in Waste Spark.  The Trail coil assembly includes 2x single output coils attached to a unique igniter module.  Both igniters ground through the body of the module so they must be connected to chassis ground. The Trail igniter has what is known as a "Toggle" system. There is one timed input from the ECU to the igniter, and a second signal that is sent by the ECU to determine which coil is to be fired.  This ignition system was supported on all Haltech ECU models up until the Elite Series. The Elite Series will NOT work with the Trail igniter.

The Ignition Mode must be set to DISTRIBUTOR and NOT Waste Spark for these coils.  Constant Charge with a Falling edge and 5.0ms dwell.


Lead Coil (NOT FOR ELITE. Wiring for Sport Series or older)
Wire Colour
Description
Haltech Connection
Tan
12V+ Swtiched
---
Pink
ECU Signal
Ignition Output 1

Trail Coils (NOT FOR ELITE. Wiring for Sport Series or older)
Wire Colour
Description
Haltech Connection
Tan
12V+ Swtiched
---
Pink
ECU Signal
Ignition Output 2
White
Toggle Signal
Ignition Output 3
Yellow
Tacho Output
---
Grey
No Connection
---

Dwell






FD3S Ignition Coils

The FD3S changed to Waste Spark ignition with the ignition coils mounted under the intake manifold and the 3x channel igniter module mounted on the inner guard.  The Lead coil is a dual-post fired in Waste Spark, and the Trail has 2x separate coils.  They should be configured as Waste Spark with a Contant Charge and Falling edge output.






Pin and Wire Colour
Description
Haltech Connection
1 - No Connection
---
---
2 - Light Green/Black
Coil- Lead
---
3 - Light Green
ECU Signal Lead
Ignition Output 1 (Yellow/Black)
4 - Light Green/White
Coil- Trail 2
---
5 - Black/White
12V+ Switched
---
6 - Brown/Black
ECU Signal Trail 2
Ignition Output 4 (Yellow/Green)
7 - Light Green/Red
Coil- Trail 1
---
8 - Brown
ECU Signal Trail 1
Ignition Output 3 (Yellow/Orange)

Dwell







RX8 Ignition Coils

The 13B-MSP engine has 4x ignition coils and uses Direct Fire ignition.  They have an internal igniter module and as such can be wired directly to the Haltech ECU.  They use Direct Fire mode and Constant Charge with a Falling edge.

  
Pin
Function
Haltech Connection
A
Signal
Ignition Output
B
Ground to Rotor Housing
---
C
12V+
---

Dwell












Injection System

Injector Wiring

2-Rotor  (10A / 12A / 13B / RX8 13B Auto Trans)

Function
Haltech Output
Haltech Wiring Colour
Elite 2000/2500 ECU Pin
Primary 1
Injector Output#1
Blue
A19
Primary 2
Injector Output#2
Blue/Black
A20
Secondary 1
Injector Output#3
Blue/Brown
A21
Secondary 2
Injector Output#4
Blue/Red
A22


2-Rotor (*RX8 13B-MSP Manual Transmission)




Function
Haltech Output
Haltech Wiring Colour
Elite 2000/2500 ECU Pin
Primary 1 Front Rotor
Injector Output#1 (Stage 1)
Blue
A19
Primary 1 Rear Rotor
Injector Output#2 (Stage 1)
Blue/Black
A20
Primary 2 Front Rotor
Injector Output#3 (Stage 2)
Blue/Brown
A21
Primary 2 Rear Rotor
Injector Output#4 (Stage 2)
Blue/Red
A22
Secondary Front Rotor
Injector Output#5 (Stage 3)
Blue/Orange
A27
Secondary Rear Rotor
Injector Output#6 (Stage 3)
Blue/Yellow
A28

* These engines have a total of 6x injectors   i.e. 3x injector per rotor using 3x stages.   The OEM (Mazda) calls first stage Primary 1, the second stage as Primary 2, and the third stage as Secondary.  


3-Rotor (20B)

Function
Haltech Output
Haltech Wiring Colour
Elite 2000/2500 ECU Pin
Primary 1
Injector Output#1
Blue
A19
Primary 2
Injector Output#2
Blue/Black
A20
Primary 3
Injector Output#3
Blue/Brown
A21
Secondary 1
Injector Output#4
Blue/Red
A22
Secondary 2
Injector Output#5
Blue/Orange
A27
Secondary 3
Injector Output#6
Blue/Yellow
A28


4-Rotor (26B)

Function
Haltech Output
Haltech Wiring Colour
Elite 2000/2500 ECU Pin
Primary 1
Injector Output#1
Blue
A19
Primary 2
Injector Output#2
Blue/Black
A20
Primary 3
Injector Output#3
Blue/Brown
A21
Primary 4
Injector Output#4
Blue/Red
A22
Secondary 1
Injector Output#5
Blue/Orange
A27
Secondary 2
Injector Output#6
Blue/Yellow
A28
Secondary 3
Injector Output#7
Blue/Green
B29
Secondary 4
Injector Output#8
Blue/Violet
B30


OEM Injector Flow Rates

ENGINE
Primary
Secondary
Tertiary
12A Turbo SA22C Savanna (RX7 Series 3 JDM - 1st Gen)
800cc
-
-
13B-RE EGI 6-Port Non Turbo FB (RX7 Series 3 USDM - 1st Gen)
720cc
-
-
13B-RE DEI 6-Port Non Turbo FC3S (RX7 Series 4 and 5 - 2nd Gen)
430cc
430cc
-
13B-RE Turbo FC3S (RX7 Series 4 and 5 - 2nd Gen)
550cc
550cc
-
13B-RE Turbo JC (Cosmo)
550cc
550cc
-
13B-RE Turbo FD3S (RX7 Series 6,7 and 8 - 3rd Gen)
550cc
850cc
-
13B-MSP RX8 Manual Transmission
290cc
380cc
380cc
13B-MSP RX8 Automatic Transmission
290cc
480cc
-
20B-REW JC (Cosmo)
550cc
550cc
-









Throttle Position Sensor

Series 4

The Series 4 TPS can be identified by there being only a single sensor.

OEM Diagram
OEM ECU Pin and Wiring Loom Information
Direct Sensor Wiring Information



2A = 5 Volt (Brown/White)

2C = Ground (Brown/Black) Some are plain Black

2G = Signal (Green) Some are Green/Red

Orange = 5V+

Black/Red  = Ground

Green/Red =  Signal


Note: Series 4 TPS do not operate over the full range of throttle movement.  They read 100% by around 30% actual throttle opening and are as such not suitable for accurate Haltech ECU tuning.  It is advised to change to the Series 5 throttle body or sensor arrangement.


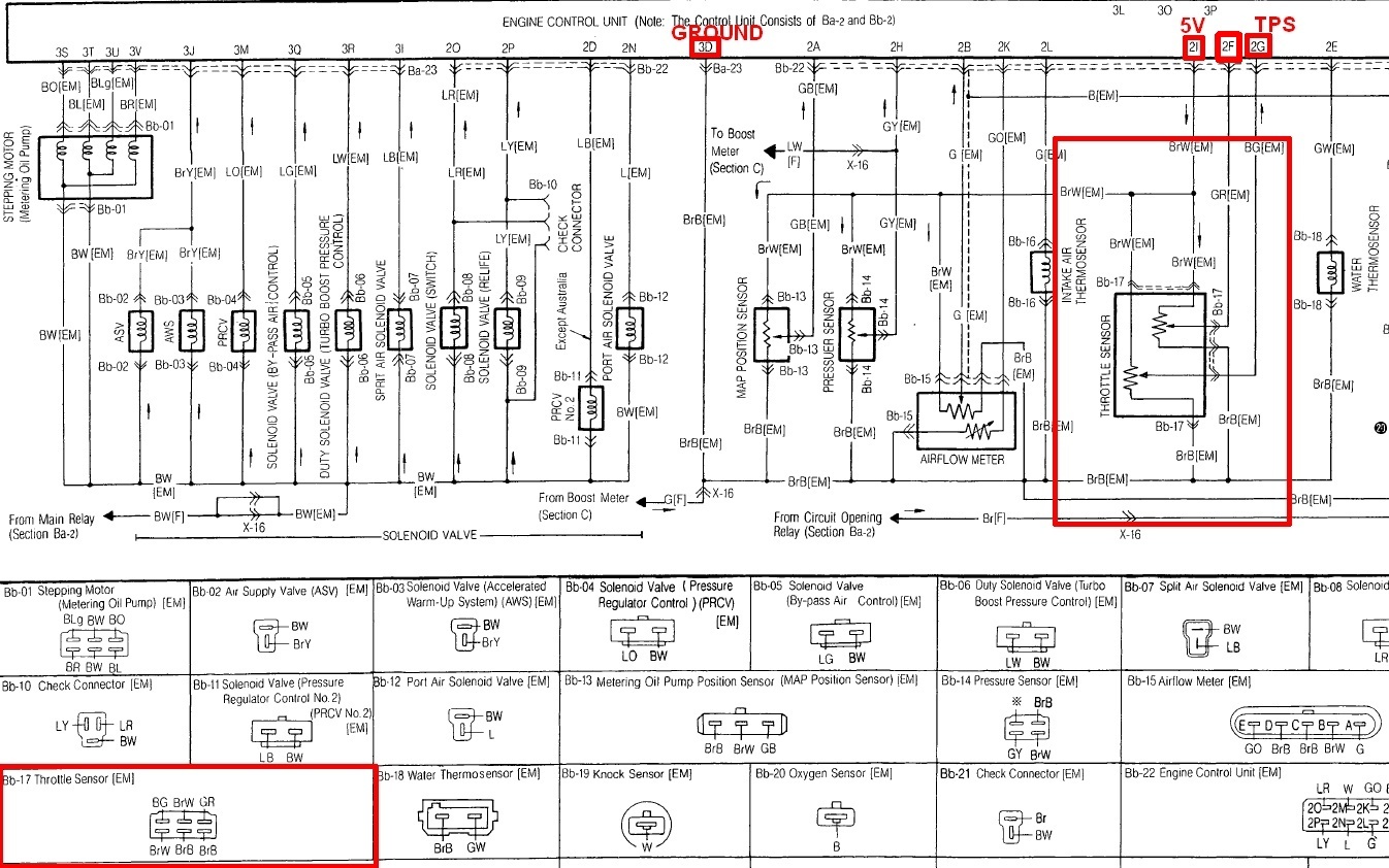
Series 5

The Series 5 TPS can be identified be there being two position sensors.  One is a full range sensor and one is the same as the Series 4 sensor.  The full range sensor was added for engines having an electronic oil metering system.

OEM Diagram
OEM ECU Pin and Wiring Loom Information
Direct Sensor Wiring Information


2i = 5V (Brown/White)

3D = Ground (Brown/Black)

2F = Short Range TPS (Green/Red)

2G = Full Range TPS (Black/Green)

Sensor 1

Red = 5V+

Blue = Ground

Yellow = Full Range Signal

Sensor 2

Orange = 5V+

Black/Red = Ground

Green/Red = Short Range Signal


Only the full range sensor should be wired to your Haltech ECU.


Series 6,7,8

OEM Diagram
OEM ECU Pin and Wiring Information
TPS Direct Connection


3f = TPS Signal (Green/Red)

3g = Idle Switch (Black/Green) NOT USED

3i = 5V+ (Brown/White)

4d = Signal Ground (Brown/Black)


Black = Ground
Orange = 5V+
White = Signal



Cosmo 13B and 20B

Please excuse the hand drawn old diagram.  Finding info on these vehicles is near impossible.



MAP Sensor

Series 4,5

It is recommended to use the internal Haltech MAP sensor for these vehicles.


Series 6,7,8

It is recommended to use the internal Haltech MAP sensor however the OEM unit can be used if preferred.

OEM Diagram
OEM ECU Pin and Wiring Information


1o = MAP Signal (Grey/Yellow)

3i = 5V+ (Brown/White)

4d = Signal Ground (Black/LightGreen)


OEM Oil Metering Pump

Old diagram but will be updated shortly



 PDF

















    • Related Articles

    • Rotor Phasing Secrets

      Even though modern engines don’t rely on distributors anymore, there are still plenty of race and historic engines that do. What is a distributor? Before individual coil on plug ignition systems, engines used to have a single coil and a mechanically ...
    • 10 Things You Need To Know About Rotary Tuning

      Are you a piston guy or a rotor guy? If the former applies to you then you might find this article irrelevant and rather boring. However, if you identify with the latter then this might well be the most important article you’ll ever read. Right from ...
    • Nexus Plug-in ECU - Mazda RX-8 Series 1

      Congratulations on your purchase of a Nexus Plug-in ECU for a Mazda RX-8 Series 1. This vehicle-specific product allows you to seamlessly integrate a Nexus ECU into your vehicle without the complexities of wiring. With this hassle-free solution, you ...
    • Honda / Acura B Series Engine

      The B-Series engine was offered in Integras, Civics, Preludes, Accords, CRXs, Del Sols and CRVs. This engine had 28 different engine codes. The letter B is normally followed by two numbers to designate the displacement of the engine, another letter, ...
    • Distributor Rotor Phasing

      This article is about why we need to check the rotor phasing, and how to set the mechanical location of the rotor button inside the distributor when EFI is being used.   For training purposes Elite ECU terminology has been used but the same process ...